Sweet Ivy Cafe

Project Description
Nestled on the corner of W Nationwide Boulevard and West Street in Columbus, Ohio, stands a seven story building, housing great gems of the community. The first two floors serve as commercial spaces, whereas the remaining five are responsible for a senior living residence. Each piece of this establishment embodies the same values--promoting physical and mental wellness by connecting with one's inner self and the human connection with nature. As visitors journey through the various spaces, they’re able to appreciate the freshness of local goods and engage in the intimate designs. It’s a place where everyone is welcomed and accepted for who they truly are.
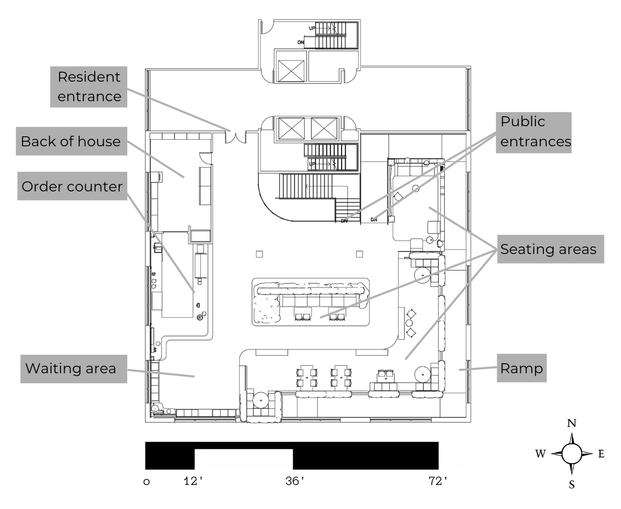
On the second level of the commercial space lies Sweet Ivy Cafe, an urban haven in the heart of Columbus. Situated just above the Good Earth Market, it serves as a perfect place to enjoy your market finds or relax with a cup of coffee from the cafe. It embraces the importance of uniting the community with nature through biophilic elements and organic baked goods and beverages. The space also takes on some classic design elements to connect with the senior living residence on the levels above.
This project was a group effort where each member was assigned a portion of the seven story building to design. The other designs included a local food market, a senior resident gym, and a senior resident apartment space. 
Year
2024
Course
Intermediate Interior Design 2
Type
Multipurpose Space/Cafe
Medium
Revit, Enscape, Adobe Illustrator
Final Renderings
Floor Plan
Back to Top